Guide Price £320,000








2 Bedrooms 1 Bathroom 2 Reception
Semi - Freehold
9 Photos
Tadley












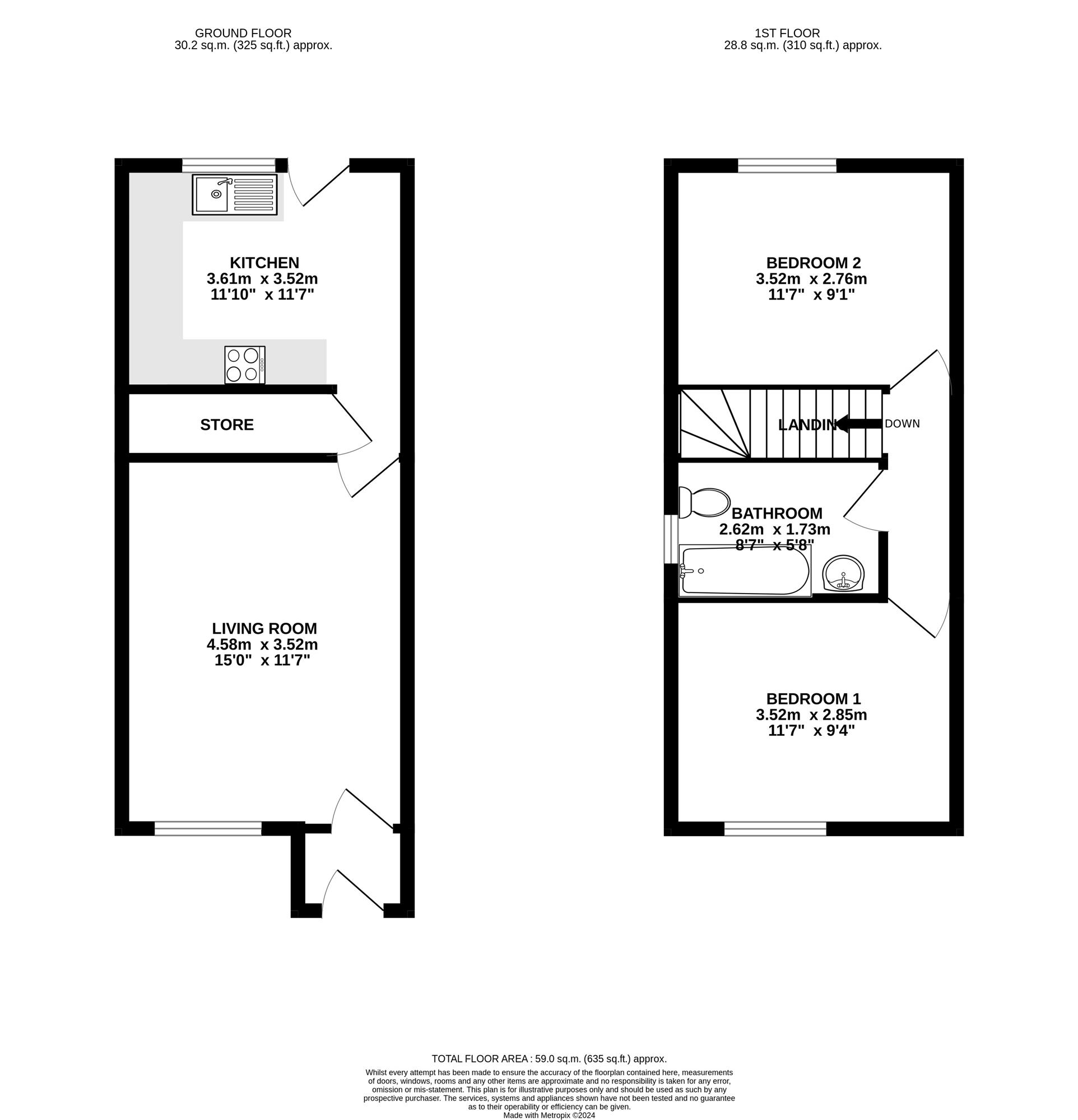
White & Russell are pleased to bring to the market this modern two bedroom semi detached house which is situated within a small private residential close. The first floor provides two generous bedrooms with a bathroom with white suite with the ground floor providing a neatly fitted kitchen with built in appliances, separate living room with French doors leading to a double glazed conservatory which in turn leads to the private enclosed garden. Other features include a downstairs cloakroom/wc, garage with private parking in front with additional parking bay, double glazed windows & economy heating. This property is being offered with NO ONWARD CHAINPlease contact us for any further information or to arrange a viewing. COUNCIL TAX BAND: C PAYABLE 2026/2027: £2022.78 EPC RATING: E (53)
Reference: WHR1001011
Disclaimer
These particulars are intended to give a fair description of the property but their accuracy cannot be guaranteed, and they do not constitute an offer of contract. Intending purchasers must rely on their own inspection of the property. None of the above appliances/services have been tested by ourselves. We recommend purchasers arrange for a qualified person to check all appliances/services before legal commitment.
Contact White & Russell for more details
5 Cowdery Heights, Basingstoke, RG24 7AN | 01256 819491 | sales@whiteandrussell.co.uk